0577-67008999
扫一扫
您当前的位置:首页 / 产品展示 / 自力式压力菠萝视频下载APP网址 / ZZYP自力式蒸汽菠萝视频下载APP网址
所属分类: 自力式压力菠萝视频下载APP网址
自力式蒸汽菠萝视频下载APP网址的安装注意:必须在压力菠萝视频下载APP网址的适当位置取一个压力点。阀前压力应大于管径的两倍,阀后压力应大于阀内管径的6倍。计算:自动阀可以小于管径,但截止阀、截止阀、旁通阀、过滤器不能小于管径。
产品详情
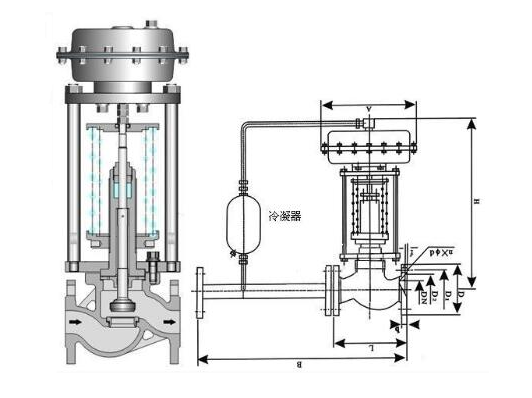
| 公称通径 0N | 20 | 25 | 32 | 40 | 50 | 65 | 80 | 100 | 125 | 150 | 200 | 250 | 300 | ||
| 法兰接管尺寸 B | 383 | 512 | 603 | 862 | 1023 | 1380 | 1800 | 2000 | 2200 | ||||||
| 法兰端面距 L | 150 | 160 | 180 | 200 | 230 | 290 | 310 | 350 | 400 | 480 | 600 | 730 | 850 | ||
| 压 力 调 节 范 围 kPa | 15 一 140 | H | 475 | 520 | 540 | 710 | 780 | 840 | 880 | 915 | 940 | 1000 | |||
| A | 280 | 308 | |||||||||||||
| 280 — 500 | H | 455 | 500 | 520 | 690 | 760 | 800 | 870 | 880 | 900 | 950 | ||||
| A | 230 | ||||||||||||||
| 120 — 300 | H | 450 | 490 | 510 | 680 | 750 | 790 | 860 | 870 | 890 | 940 | ||||
| A | 176 | 194 | 280 | ||||||||||||
| 480 — 1000 | H | 445 | 480 | 670 | 740 | 780 | 850 | 860 | 880 | 930 | |||||
| A | 176 | 194 | 280 | ||||||||||||
| 600 一 1500 | H | 445 | 570 | 600 | 820 | 890 | 950 | 1000 | 1100 | 1200 | |||||
| A | 85 | 96 | |||||||||||||
| 1000 — 2500 | H | 445 | 570 | 600 | 820 | 890 | 950 | 1000 | 1100 | 1200 | |||||
| A | 85 | 96 | |||||||||||||
| 重量 kg | 26 | 37 | 42 | 72 | 90 | 114 | 130 | 144 | 180 | 200 | 250 | ||||
| 导压管接头螺纹 | M16X1.5 | ||||||||||||||

1、必须在压力菠萝视频下载APP网址的适当位置取一个压力点。阀前压力应大于管径的两倍,阀后压力应大于阀内管径的6倍。
2、计算,自动阀可以小于管径,但截止阀、截止阀、旁通阀、过滤器不能小于管径。
1、当用于气体或低粘度液体介质时,ZZY型自走式压力控制阀通常直立安装在水平管道上,只有翻转时才会翻转。不允许位置空格。或对角线。
2、调压阀周围应留有适当的空间,便于现场维护和操作。
3、如果介质是干净的气体或液体,则阀门前的过滤器可能没有安装。
4、压力控制阀口径过大(DN≥100)时,需要安装固定支架。如果您发现介质非常干净,则可能未安装Part3、
5、如果位置确实不准,可以省略旁通阀(手动)(不推荐)。
6、阀组后,用户可根据需要选择止回阀、安全阀等。
7、当阀门使用蒸汽或高粘度液体介质时,ZZYP自力式蒸汽菠萝视频下载APP网址通常倒装在水平管道上,冷凝器(蒸汽自动)应更高,接管阀门的前部和后部。冷凝器在使用前应注满冷水,约3个月后注水一次。
上一条:ZZYVP供氮阀
下一条:ZZYP自力式压力调压阀安装
相关产品
相关大菠萝视频成人下载
大菠萝网站污菠萝视频下载APP网址厂家是一家在自控阀门等领域有着多年生产和服务经验的专业厂家,提供各种气动菠萝视频下载APP网址, 电动菠萝视频下载APP网址, 自力式压力菠萝视频下载APP网址, 大菠萝视频黄色软件等自控阀门,产品广泛应用于行业控制系统、石油、化工、电力、水处理、矿用等领域。