0577-67008999
扫一扫
您当前的位置:首页 / 产品展示 / 自力式压力菠萝视频下载APP网址 / ZZYVP供氮阀
所属分类: 自力式压力菠萝视频下载APP网址
传统的氮气密封装置(氮气密封阀)由三部分组成:氮气供应阀、氮气排放阀和呼吸阀。当罐内压力超过设定值时,ZZYVP供氮阀关闭,氮气安全阀打开,迅速释放罐内多余压力。当储罐内压力下降时,氮气排放阀关闭,供氮阀打开,将氮气注入罐内,使储罐处于微正压。
产品详情
传统的氮气密封装置(氮气密封阀)由三部分组成:氮气供应阀、氮气排放阀和呼吸阀。当罐内压力超过设定值时,供氮阀关闭,氮气安全阀打开,迅速释放罐内多余压力。当储罐内压力下降时,氮气排放阀关闭,供氮阀打开,将氮气注入罐内,使储罐处于微正压。供氮阀的氮源压力保持在0.2-0.8MPa的固定值。如果现场压力较高,在供氮阀前加装自动调压阀,将压力提高到0.8MPa以下,使用效果好。
供氮阀不需要外部能量,以被调节介质的压力为动力源,自动控制压力。在阀门或储罐压力之后保持罐压力恒定。广泛应用于化工储罐氮气密封、超纯水氮气密封、食用油氮气密封、导热油罐氮气密封等需要与空气隔绝的氮气密封保护系统。
供氮阀特点:控制精度比一般直动式压力控制阀高约2倍。大调节压差比(阀前0.8MPa、阀后0.0003MPa等)特别适用于低压气体控制。
压力设定由先导实现,方便、快捷、省时,在运行状态下可连续设定。
供氮阀工作原理
供氮装置结构将罐顶压力点的介质通过导压管引入检测机构,对检测元件产生作用力。弹簧和预紧力。当罐内压力低于供氮装置压力设定值时,失去平衡,先导阀芯打开,阀前气体流入主阀上下执行机构。膜室通过减压阀和节流阀打开,阀心打开,罐内充满氮气。当罐内压力升到供氮装置压力设定值时,预设弹簧力和主阀执行器关闭先导阀芯,弹簧作用关闭主阀,停止供氮。
供氮阀技术参数
| 公称通径DN | 20 | 25 | 32 | 40 | 50 | 65 | 80 | 100 | 125 | 150 | 200 |
| 额定KV值 | 7 | 11 | 20 | 30 | 48 | 75 | 120 | 190 | 300 | 480 | 760 |
| 公称通径DN | 20、25 | ||||||||||
| 2 | 3 | 4 | 5 | 6 | 7 | 8 | 9 | 10 | 12 | 15 | |
| 额定KV值 | 0.02 | 0.08 | 0.12 | 0.20 | 0.32 | 0.5 | 0.8 | 1.2 | 1.8 | 3.2 | 5 |
| 固有流量特性 | 快开、线性、修正线性 | ||||||||||
| 调节精度 | ±5% | ||||||||||
| 压力调节范围(KPa) | 0.5~2.0、1~6、5~10、9~15、12~19、18~25、22~30、28~35、32~40、38~50、48~60、58~72、70~100 | ||||||||||
| 允许泄漏量 | 软密封:VI级;硬密封:IV级(10-4×KV)(参见GB/T4213-2008) | ||||||||||
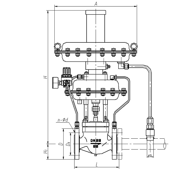
供氮阀(供氮装置)外形尺寸

供氮阀外形尺寸图
| 公称通径DN | 15 | 20 | 25 | 32 | 40 | 50 | 65 | 80 | 100 | 125 | 150 | 200 |
| L | 130 | 150 | 160 | 180 | 200 | 230 | 290 | 310 | 350 | 400 | 480 | 600 |
| H | 690 | 690 | 690 | 705 | 705 | 760 | 800 | 800 | 840 | 880 | 980 | 1050 |
| A | Φ308、Φ394 | |||||||||||
| L1 | 233 | 233 | 233 | 332 | 332 | 373 | 572 | 572 | 673 | 980 | 980 | 1200 |
| P≥ | 135 | 135 | 170 | 220 | 220 | 235 | 245 | 325 | 425 | 550 | 660 | 900 |
| H1 | 330 | |||||||||||
| 重量(kg) | 18 | 18 | 18 | 25 | 27 | 42 | 65 | 80 | 108 | 182 | 260 | 305 |
相关产品
相关大菠萝视频成人下载
大菠萝网站污菠萝视频下载APP网址厂家是一家在自控阀门等领域有着多年生产和服务经验的专业厂家,提供各种气动菠萝视频下载APP网址, 电动菠萝视频下载APP网址, 自力式压力菠萝视频下载APP网址, 大菠萝视频黄色软件等自控阀门,产品广泛应用于行业控制系统、石油、化工、电力、水处理、矿用等领域。